

Floor Plans
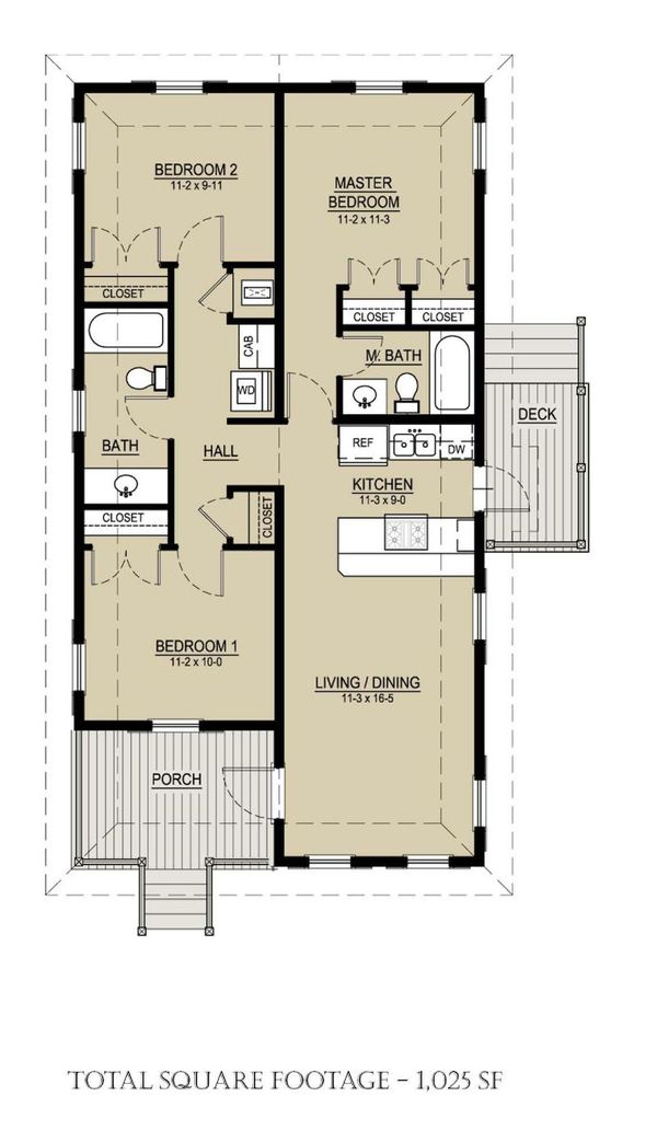
Floor Plan - Main Floor Plan

Full Specs & Features
What's included in this plan set
All plans are drawn at ¼” scale or larger and include :
- Foundation Plan: Drawn to 1/4" scale, this page shows all necessary notations and dimensions including support columns, walls and excavated and unexcavated areas.
- Exterior Elevations: A blueprint picture of all four sides showing exterior materials and measurements.
- Floor Plan(s): Detailed plans, drawn to 1/4" scale for each level showing room dimensions, wall partitions, windows, etc. as well as the location of electrical outlets and switches.
- Cross Section: A vertical cutaway view of the house from roof to foundation showing details of framing, construction, flooring and roofing.
- Interior Elevations: Detailed drawings of kitchen cabinet elevations and other elements as required.
*See important information before purchasing
Pricing
Plan Options
Foundation Options
| Pier | $0.00 | Ideal for lot conditions where the home needs to be off the ground. A pier foundation consists of wood posts or concrete piers connected by beams to support the home. Some lots may require drilling deep into bedrock to support the posts. |
*Options with a fee may take time to prepare. Please call to confirm.
Additional Options
*Options with a fee may take time to prepare. Please call to confirm.
Unless you buy an “unlimited” plan set or a multi-use license you may only build one home from a set of plans. Plans cannot be re-sold.
"We believe that the idea of "home" implies more than what is bordered by room dimensions and lot lines. So while we are committed to individual house designs that achieve the highest levels of safety, livability and curb appeal, we want them to perform as building blocks for community, as well."
Architect Bruce B. Tolar, P.A. is an architectural, planning and development firm headquartered on the Mississippi Gulf Coast. From our vantage point at the epicenter of coastal growth during the boom years of the 1980s and 1990s and of disaster recovery in the wake of Hurricane Katrina in 2005, we have learned the lessons of quality design from the individual parcel to the neighborhood to the broader community.
Many of our techniques were refined during the go-go years of community development on the upper Gulf Coast from Northwest Florida to Louisiana. We learned how to integrate state-of-the-art custom home techniques with state-of-the-art planning for compact, walkable new towns. Those skills were, in turn, applied to the recovery and rebuilding process after Katrina.
As partners on the team commissioned by the Mississippi Governor's Commission on recovery planning, we helped shape the Katrina Cottage movement, which proposed alternatives to FEMA trailers that could transition to permanent, storm-worthy homes in new or existing neighborhoods. We took on the role of developers for a model neighborhood of Katrina Cottage designs. That Ocean Springs, Mississippi neighborhood “Cottage Square“ exhibits 14 units in a two-acre cluster, mixing residential and commercial uses and seven design variations ranging from a 200-square-foot studio to a 1,300-square-foot, two story structure we currently use as our office.
A winner of innovation awards from both the Congress for the New Urbanism and Cottage Living Magazine, Cottage Square is inspiring an expanding list of new cottage neighborhoods that utilize our designs and site plans, often in combination with design and development partners.
Original article and pictures take https://www.houseplans.com/plan/1025-square-feet-3-bedrooms-2-bathroom-cottage-house-plans-0-garage-36983 site
Комментариев нет:
Отправить комментарий